ネステイハウス東京新宿 宿泊予約・プラン一覧・施設情報
ネステイハウス東京新宿
住所 2-chōme-28-8 Ōkubo, Shinjuku City
新宿
- 最寄り駅
- 新大久保駅(0.46km)
- 最寄り空港
- 羽田空港 (HND)(18.51km)
- 施設タイプ
- ホテル
- チェックイン開始時刻
- 16:00
- チェックアウト時刻
- 11:00
ホテルからの重要なお知らせ
最低宿泊年齢 : 0 歳
申し訳ございません。現在ご予約可能なプランはございません
宿泊日を変更して再検索して下さい。
施設情報
感染症対策
安全対策・手順を熟知した従業員
インターネット
無料Wi-Fi,Wi-Fi(共有エリア内),インターネット
対応言語
英語,日本語,北京語
その他サービス
トイレタリー,コンタクトレス チェックイン/チェックアウト,洗濯機
周辺施設
現金引き出し
ATM(280m)
コンビニ
Lawson Higashishinjuku Meijidori(650m)
公共交通機関
Nishi-waseda Subway Station(580m),地下鉄 西早稲田駅(580m),新大久保駅(460m),西早稲田(580m)
ショッピング
上野アメ横(6.4km)
病院・クリニック
国立国際医療研究センター(740m)
最寄りの空港
成田国際空港 (NRT)(62.64km),羽田空港 (HND)(18.51km)
周辺スポット
なんでもんマーケット(510m),万年湯温泉(330m),夫婦木神社(190m),小泉八雲記念公園(410m),戸山公園(160m),新大久保コリアンタウン(470m),新大久保駅(460m),東京グローブ座(360m),ユニークな研究所(330m),西戸山公園(480m)
人気スポット
上野恩賜公園(6.45km),外源堂(8.41km),新宿御苑(2.07km),明治神宮(3.1km),東京タワー(6.29km),東京スカイツリー(9.65km),東京都庁展望室(1.93km),浅草(8.41km),浅草寺(8.45km),渋谷交差点(4.97km),銀座(6.8km),銀座コリドー街(6.8km)
ポリシーと追加情報
ホテル詳細情報
ネステイハウス東京新宿で、比類ない設備と機能の数々をご体験ください。 ご滞在中は無料Wi-Fiをご利用いただけるため、人との連絡もスムーズです。 すべてのお客様の健康と利便性を確保するため、当宿泊施設内は全面禁煙となっております。 ネステイハウス東京新宿では、快適なご滞在をサポートする便利な設備とサービスを備えた客室をご用意しています。 より楽しい滞在のために、当宿泊施設の一部の客室にはエアコンまたはリネンサービスを備えています。コーヒーや紅茶を淹れるのに必要なものは、一部の部屋に揃っておりますのでご安心ください。ネステイハウス東京新宿の特定の客室では、バスルームにバスローブ、タオル、ドライヤーをご用意しております。
ホテルからの重要なお知らせ
最低宿泊年齢 : 0 歳
客室
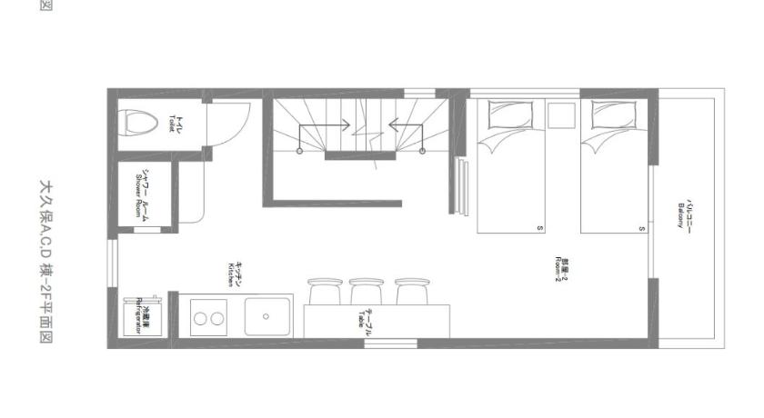
ヴィラ
ベッドルーム 1: :シングルベッド 1台 & ダブルベッド 1台;ベッドルーム 2: :ダブルベッド 1台 & シングルベッド 1台;ベッドルーム 3: :ダブルベッド 1台;ベッドルーム 4: :ダブルベッド 1台
部屋の広さ:111㎡
最大人数(大人10人、子供0人)
- 暖房,クローゼット,エアコン,テレビ,薄型TV,バルコニー/テラス
- 全室Wi-Fi無料,ヘアドライヤー,冷蔵庫
- 煙感知器,消火器
- フルキッチン,電子レンジ
- リネン類,タオル,バスタブ,シャワー
- トイレタリー,洗濯機
客室設備
全室で利用可能
安全対策
キッチン
バス・アメニティー・備品
その他サービス
口コミ
現在口コミ情報はございません。
©Ponta




















































































