Urbanex Kinshicho North 宿泊予約・プラン一覧・施設情報
Urbanex Kinshicho North
住所 太平4−13−4
両国
- 最寄り駅
- 錦糸町(0.6km)
- 最寄り空港
- 羽田空港 (HND)(17.28km)
- 施設タイプ
- アパートメント/フラット
- チェックイン開始時刻
- 16:00
- チェックアウト時刻
- 10:00
ホテルからの重要なお知らせ
最低宿泊年齢 : 0 歳
ヘンパーティーやスタッグパーティー(男性または女性同士の独身最後のパーティー)などは禁止されています。到着予定時刻をに事前に連絡してください。
申し訳ございません。現在ご予約可能なプランはございません
宿泊日を変更して再検索して下さい。
施設情報
安全対策
煙感知器,消火器
感染症対策
安全対策・手順を熟知した従業員,1メートル以上の対人距離の確保,プロ仕様の消毒サービス
インターネット
Wi-Fi(共有エリア内),インターネット
館内施設・便利なサービス
エレベーター
その他サービス
トイレタリー,コンタクトレス チェックイン/チェックアウト,キャッシュレス支払いサービス,洗濯機
周辺施設
現金引き出し
ATM(250m)
コンビニ
Lawson Store 100(140m)
最寄りの空港
羽田空港 (HND)(17.28km)
公共交通機関
錦糸町(600m)
周辺スポット
ベイル(4.62km),あさがおまつりいりや(3.52km),上野(3.76km),両国花火資料館(2.3km),両国駅(1.68km),亀戸梅やしき(950m),亀戸梅屋敷(970m),亀戸香取神社(990m),井筒部屋(2.33km),台東区立浅草公会堂(2.12km),国技館(2.02km),国技館通りの力士像(2.34km),コニカミノルタプラネタリウム“天空”in東京スカイツリータウン(R)(940m),小野照崎神社(3.6km),ビストロ屋(3.8km),志゛満ん草餅(2.36km),旧万世橋駅(4.07km),明治座(2.98km),アサヒビール本社(1.58km),東京スカイツリータウン(R)(990m),東京消防庁 本所防災館(210m),砂町銀座商店街(2.9km),お茶の水 おりがみ会館(4.47km),よこた酒店(4.74km),錦糸町(600m),鎧の渡し跡(3.98km),霊巌寺(2.65km),須賀神社(秋葉原)(2.54km),ともづな馬舎(520m),駅弁屋祭(4.71km),高台寺(950m),龍眼寺(570m)
人気スポット
新宿御苑(9.66km),明治神宮(10.83km),浅草(2.04km),渋谷交差点(11.37km)
ポリシーと追加情報
ホテル詳細情報
ホテルからの重要なお知らせ
最低宿泊年齢 : 0 歳
ヘンパーティーやスタッグパーティー(男性または女性同士の独身最後のパーティー)などは禁止されています。到着予定時刻をに事前に連絡してください。
客室
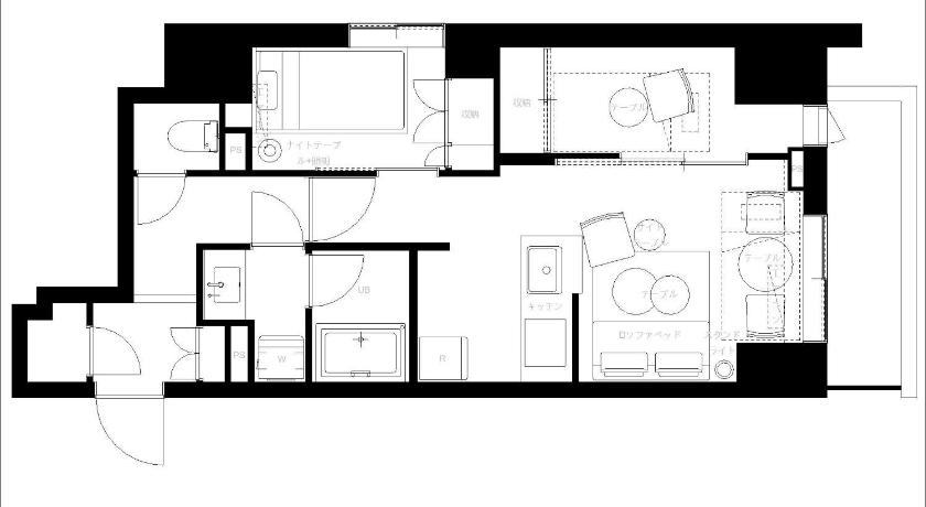
2ベッドルーム アパートメント
ベッドルーム 1: :シングルベッド 1台;ベッドルーム 2: :ソファーベッド 1台;ベッドルーム 3: :布団 2組
部屋の広さ:41㎡
最大人数(大人5人、子供0人)
- 暖房,エアコン,バルコニー/テラス
- ヘアドライヤー,冷蔵庫
- 煙感知器,消火器
- フルキッチン,電子レンジ
- タオル,バスタブ,シャワー
- トイレタリー,洗濯機
客室設備
全室で利用可能
安全対策
キッチン
バス・アメニティー・備品
その他サービス
口コミ
現在口コミ情報はございません。
©Ponta








































