Ted Stay Akasaka 宿泊予約・プラン一覧・施設情報
Ted Stay Akasaka
住所 舞鶴3−2−17
中央区
- 施設タイプ
- アパートメント/フラット
- チェックイン開始時刻
- 15:00
- チェックアウト時刻
- 10:00
ホテルからの重要なお知らせ
最低宿泊年齢 : 0 歳
ヘンパーティーやスタッグパーティー(男性または女性同士の独身最後のパーティー)などは禁止されています。到着予定時刻をに事前に連絡してください。プライベートホストによる運営
申し訳ございません。現在ご予約可能なプランはございません
宿泊日を変更して再検索して下さい。
施設情報
安全対策
煙感知器,消火器
インターネット
Wi-Fi(共有エリア内),インターネット
対応言語
日本語
その他サービス
トイレタリー,プライベートエントランス
周辺施設
周辺スポット
人気スポット
ポリシーと追加情報
ホテル詳細情報
ホテルからの重要なお知らせ
最低宿泊年齢 : 0 歳
ヘンパーティーやスタッグパーティー(男性または女性同士の独身最後のパーティー)などは禁止されています。到着予定時刻をに事前に連絡してください。プライベートホストによる運営
客室
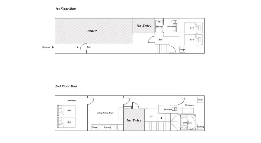
ダブルルーム ダブルベッド2台付
ダブルベッド 2台 & 布団 1組
部屋の広さ:22㎡
最大人数(大人5人、子供0人)
- 暖房,エアコン,テレビ,薄型TV
- ヘアドライヤー,冷蔵庫
- 煙感知器,消火器
- 電子レンジ
- タオル,シャワー
- トイレタリー
客室設備
全室で利用可能
安全対策
キッチン
バス・アメニティー・備品
その他サービス
口コミ
現在口コミ情報はございません。
©Ponta














































